Country and language selection
  • Deutschland (DE)
  • France (FR)
  • Nederland (NL)
  • Danmark (DK)
  • Belgique (BE)
  • Lëtzebuerg (LU)
  • Schweiz (CH)
  • Österreich (AT)
  • International
  • Language
  • Search
  • Front page
  • Drainage channels
    • Civil engineering
      • BIRCOsir Small dimensions
      • BIRCOsir Rail Track Drainage
      • BIRCOprofil
    • Groundwater protection
      • BIRCOsir Large dimensions
      • BIRCOmassiv
      • BIRCOmax-i
      • BIRCOprotect
      • BIRCOsolid channels
      • BIRCOdicht
    • Urban planning and landscaping
      • BIRCOplus
      • BIRCOslim® drainage channel
      • BIRCOlight with steel angles
      • BIRCOlight with DI angles
      • BIRCOlight triloc
      • BIRCOparksafe®
      • BIRCOslotted steel covers
      • BIRCOtopline
      • BIRCOprofil
  • Point drainage
    • Civil engineering
      • BIRCOsir Point Drainage
    • Groundwater protection
      • BIRCOdicht Point Drainage
    • Urban planning and landscaping
      • BIRCOplus Point Drainage
      • BIRCOlight® Point Drainage with DI Frame
      • BIRCOtopline Outlet elements
  • Rainwater Management
    • Treatment
      • BIRCOpur®
      • BIRCOprime® evo
      • BIRCOprime®
      • BIRCOhydroshark
    • Infiltration
      • BIRCOpur
    • Retention
      • BIRCOmax-i
  • Cable supply channels
    • BIRCOcanal supply channels
  • Project Management
    • Project Management
      • Overview Project Management
      • Rainwater Management
      • BIRCOquality
      • Factory service, cuts, bore holes
      • Laying Accessories
      • BIRCOcolor
      • BIRCOeasyclean
      • Materials
      • BIRCOproject
  • Company
    • Company
      • About BIRCO
      • Locations
    • News
      • Press releases
      • Conferences and trade fairs
    • Contact
      • Your Contact
      • Contact form
  • Downloads
    • Downloads
      • Brochures
      • Product information
      • Tender Text
      • Certificates
      • Declaration of performance
      • Maintenance Instructions
    • Technical drawings
      • BIRCOsir - Small dimensions
      • BIRCOsir - Large dimensions
      • BIRCOlight
      • BIRCOmax-i
    • Installation Instructions
      • BIRCOsir
      • BIRCOprofil
      • BIRCOmassiv
      • BIRCOmax-i® / BIRCOprime® / BIRCOprime® evo
      • BIRCOprotect
      • BIRCOsolid
      • BIRCOdicht
      • BIRCOplus
      • BIRCOslim®
      • BIRCOlight
      • BIRCOlight triloc
      • BIRCOparksafe®
      • BIRCOslotted steel covers
      • BIRCOtopline®
      • BIRCOpur®
      • BIRCOhydropoint
      • BIRCOsed®
      • BIRCOhydroshark
      • BIRCOcanal
  • DIN EN Load Classes
  • Find your Contact
  • Contact
Installation Instructions
Downloads

Installation Instructions

  1. You are here:
    1. Downloads
    2. Installation Instructions
    3. BIRCOmassiv

Downloads

  • Brochures
  • Product information
  • Tender Text
  • Certificates
  • Declaration of performance
  • Maintenance Instructions

Technical drawings

  • BIRCOsir - Small dimensions
  • BIRCOsir - Large dimensions
  • BIRCOlight
  • BIRCOmax-i

Installation instructions

  • BIRCOsir
  • BIRCOprofil
  • BIRCOmassiv
  • BIRCOmax-i® / BIRCOprime® / BIRCOprime® evo
  • BIRCOprotect
  • BIRCOsolid
  • BIRCOdicht
  • BIRCOplus
  • BIRCOslim®
  • BIRCOlight
  • BIRCOlight triloc
  • BIRCOparksafe®
  • BIRCOslotted steel covers
  • BIRCOtopline®
  • BIRCOpur®
  • BIRCOhydropoint
  • BIRCOsed®
  • BIRCOhydroshark
  • BIRCOcanal

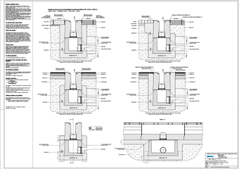
Installation instructions BIRCOmassiv in .pdf and .dwg


BIRCOmassiv
BIRCOmassiv

[PDF, 738,48 KB ]

Download
dwg

BIRCOmassiv


BIRCOmassiv 2-part outfall unit type M
BIRCOmassiv 2-part outfall unit type M

[PDF, 661,71 KB ]

Download
dwg

BIRCOmassiv 2-part outfall unit type M


BIRCOmassiv 2-part outfall unit type I
BIRCOmassiv 2-part outfall unit type I

[PDF, 881,23 KB ]

Download
dwg

BIRCOmassiv 2-part outfall unit type I

BIRCOdirectcontact EN+49 7221 5003 1220

Mon–Thu 8:30 AM - 5:00 PM
Friday 8:30 AM - 2:30 PM

  • DIN EN Load Classes
  • About BIRCO
  • Cookie settings
  • Disclaimer
  • General terms of sales and delivery
  • Sitemap
  • Imprint
  • Data Protection